![]()
140 mp + 16 mp terasă
![]()
3 dormitoare
![]()
3 băi
![]()
1 loc de parcare pavat
Casa Cornelia, cu regim de înălțime P+1E, a fost gândită pentru a satisface nevoile unei familii cu unul sau doi copii, având zona de zi de la parter, respectiv zona de noapte la etaj.
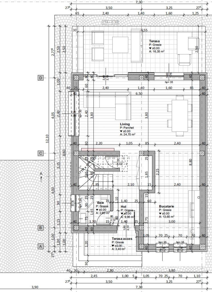
Astfel, la parter, casa dispune de:
– living generos de tip open-space, cu suprafețe vitrate generoase pentru a beneficia de cât mai multă lumină naturală, în suprafață de 24,70 mp, care include și zona de dining și ieșire pe terasa din spatele casei;
– bucătărie spațioasă, cu o suprafațâ de 13,65 mp;
– baie cu duș, situată chiar la intrarea în casă;
– hol generos cu spațiu gândit pentru depozitarea articolelor de îmbrăcăminte și încălțăminte;
– spațiu de depozitare sub scară.
La exterior, casa Cornelia dispune de o terasă generoasă, pentru a te putea bucura de zilele călduroase, în suprafață de 16,35 mp.
De asemenea, și spațiul de parcare este asigurat, lângă intrarea principală a casei, fiind amenajat cu pavaj.
Living + dining – 24,7 mp
Bucătărie – 13,65 mp
Baie – 2,8 mp
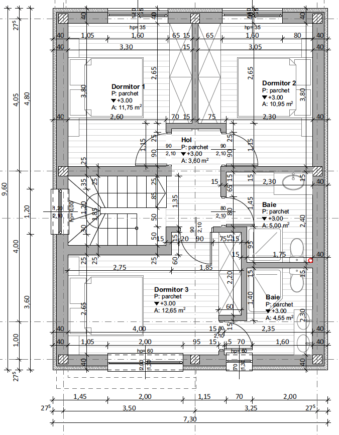
La etaj, casa Cornelia te va suprinde cu o compartimentare excelentă pentru ca tu și familia ta să profitați de fiecare centimetru pătrat al casei!
Așadar, la etaj, casa Cornelia dispune de:
– 2 dormitoare pentru copii, cu vedere spre curte, cu nișă pentru depozitare haine;
– o baie comună, cu duș, având o suprafață generoasă de 5 mp;
– un dormitor matrimonial, cu baie proprie și vedere spre stradă. Acest dormitor este foarte spațios și oferă o nișă special gândită pentru depozitarea hainelor și oferă și o baie matrimonială, de asemenea foarte spațioasă care poate găzdui un duș sau o cadă și o chiuvetă dublă.
Pentru o senzație sporită de spațiu și conectare cu natura, am optat pentru ferestre mari, foarte înalte, cu parapet mic și protecție metalică exterioară.
Dormitor 1 – 11,75 mp
Dormitor 2 – 10,95 mp
Baie – 5 mp
Dormitor matrimonial – 12,65 mp
Baie matrimonială – 4,55 mp
Metode de plată

Tranșe la dezvoltator
Această variantă presupune achitarea unui avans de 30% în momentul semnării promisiunii de vânzare-cumpărare, diferența urmând a fi plătită etapizat, pe parcursul execuției, până la predare.
Cash
Plata cash presupune plata întregii contravalori a casei în momentul semnării promisiunii de vânzare-cumpărare. Dacă alegi această variantă, beneficiezi de un discount de 5%.
![]()
Credit ipotecar
În momentul semnării promisiunii de vânzare-cumpărare se achită un avans de 15%, urmând ca diferența să fie achitată la finalizarea construcției, prin credit.
