![]()
164 mp construiți
![]()
4 dormitoare
![]()
3 băi
![]()
1 loc de parcare pavat

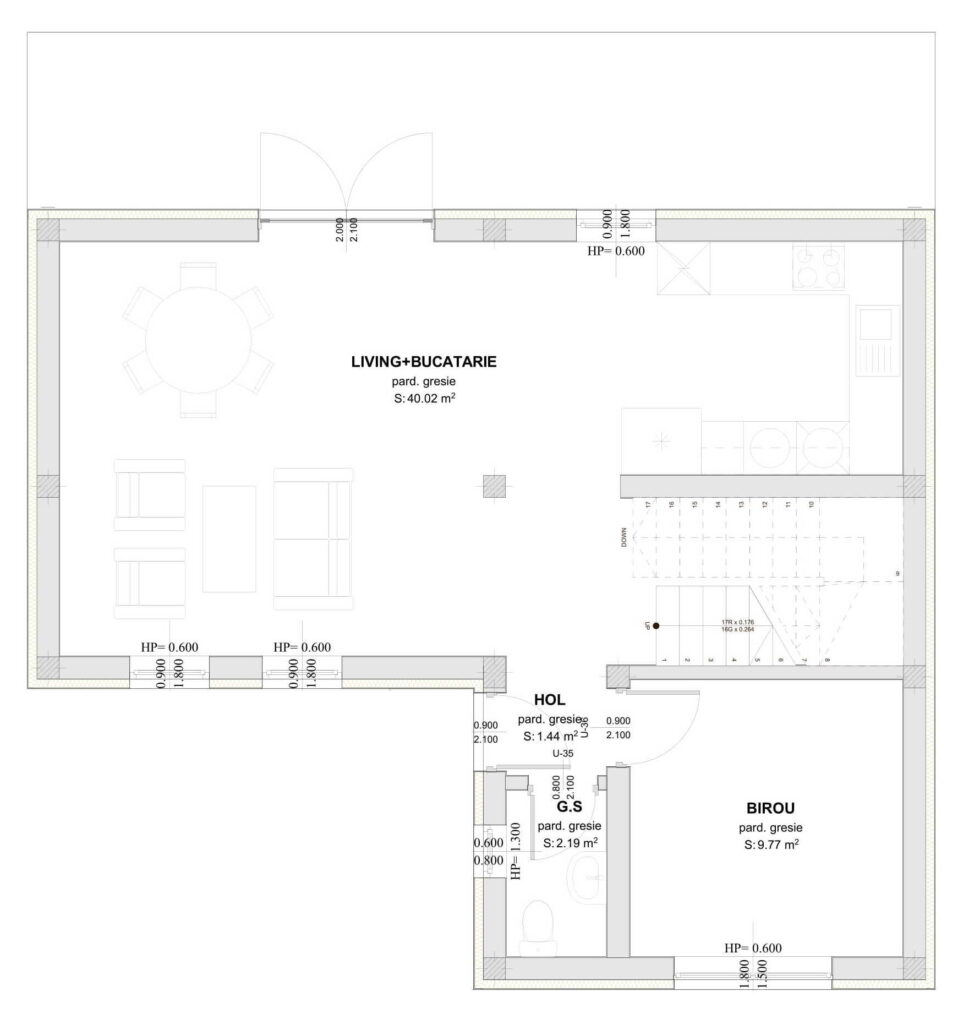
Parterul casei este zona în care se petrece toată acțiunea familiei tale!
La intrare există un grup sanitar de serviciu cu o suprafață de 2,19 mp utili,, cu o toaletă și o chiuvetă, alături de un birou cu suprafață utilă de 9,77 mp.
Totuși, piesa principală a parterului este zona de open-space, în suprafață de 40,02 mp utili, care reunește bucătăria spațioasă, dispusă în formă de U pentru a optimiza cât mai bine spațiul disponibil, zona de dining și zona de relaxare. Să nu uităm de faptul că toată această zonă este foarte bine iluminată, având suprafețe vitrate generoase.
Tot din zona de living se face și accesul pe terasa spațioasă din spatele casei, care este piesa de conexiune cu natura, cu curtea casei, unde te poți bucura de activități în aer liber împreună cu familia sau prietenii.
Living + bucătărie – 40,02 mp
Birou – 9,77 mp
Baie – 2,19 mp
La etaj se găsește zona de noapte, care reunește dormitoarele și biroul, alături de cele două băi și terasa frontală.
Dormitorul matrimonial, în suprafață utilă de 14,88 metri pătrați, dispune de baie proprie, cu cadă, având o suprafață de 3,5 metri pătrați utili.
Elementul surpriză al dormitorului matrimonial este reprezentat de terasa modernă și generoasă, cu o suprafață de 7,86 metri pătrați utili, unde poți admira stelele seara, sau unde poți savura cafeaua de dimineață.
Dormitorul secundar, care dispune de o suprafață generoasă de 16,18 metri pătrați utili
Biroul, în suprafață de 10,56 metri pătrați utili
Baia comună, cu acces de pe hol, cu cadă, chiuvetă și toaletă, dispunând de o suprafață generoasă de 6,61 metri pătrați utili.
Dormitor matrimonial – 14,88 mp
Baie matrimonială – 3,5 mp
Dormitor 2 – 16,18 mp
Birou – 10,56 mp
Baie – 6,61 mp
Metode de plată

Tranșe la dezvoltator
Această variantă presupune achitarea unui avans de 30% în momentul semnării promisiunii de vânzare-cumpărare, diferența urmând a fi plătită etapizat, pe parcursul execuției, până la predare.
Cash
Plata cash presupune plata întregii contravalori a casei în momentul semnării promisiunii de vânzare-cumpărare. Dacă alegi această variantă, beneficiezi de un discount de 5%.
![]()
Credit ipotecar
În momentul semnării promisiunii de vânzare-cumpărare se achită un avans de 15%, urmând ca diferența să fie achitată la finalizarea construcției, prin credit.
